











































Passiv Mastaba
Construction d'une nouvelle mairie avec agence postale
Client
Commune de Scharrachbergheim-Irmstett
Architectes
AL PEPE architectes
Lieu
Scharrachbergheim
Surface
300m²
Budget
900 000€ HT
Calendrier
Livré en février 2025
Bureau d'étude
CAPEM (Structure) SOLARES BAUEN (Fluides / Thermique) C2BI (Economie) SCENE ACOUSTIQUE (Acousticien) Françoise MAIRE (Paysagiste)
Photos
©11h45 / AL PEPE architectes
La nouvelle Mairie cherche l’horizontalité et la transparence pour s’intégrer à ce magnifique site arboré. La trame régulière de la structure bois placée à l’extérieur de l’édifice affirme la dimension publique du bâtiment, tout en garantissant une esthétique intemporelle, hors des modes. La teinte sombre et veloutée du goudron de pin protecteur et le dimensionnement affiné et élégant font écho à la fois aux colombages du village et aux arbres du site. Le bardage en maille déployée d’acier corten donne un aspect presque tissé à la façade et sa teinte rappelle les tons de la pierre locale (grès des Vosges) très présents dans le village historique. L’ensemble est contemporain mais ancré, rigoureux mais doux. Comme s’il avait toujours été là.
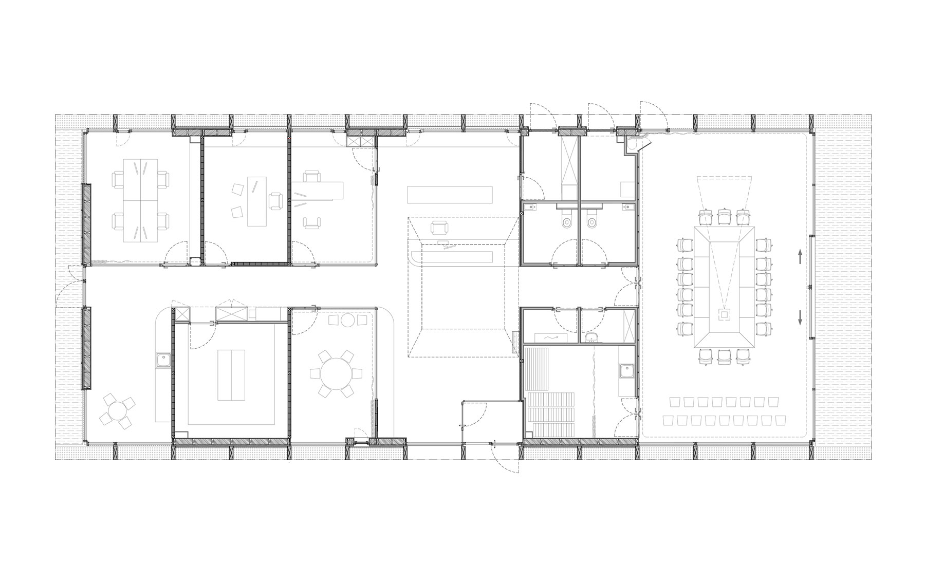
Au centre du bâtiment, une émergence construite offre un volume intérieur généreux au hall d’accueil, le cœur de cette nouvelle Mairie. Mais elle agit surtout comme un signal à l’échelle du village pour signaler la position de cette nouvelle centralité que doit constituer la future Mairie. Une girouette en cuivre reprenant les 2 blasons de la commune est installée au sommet et complète cette filiation à l’architecture villageoise traditionnelle tout en renouant avec le plaisir et l’émerveillement quasi enfantin des signes et symboles.
Cette émergence permet également une sur-ventilation naturelle du bâtiment participant activement au confort d’été. Les isolants sont biosourcés et apportent un fort déphasage thermique, couplé à l’inertie de la dalle béton, pour un bâtiment confortable en toutes saisons, ne nécessitant que très peu de chauffage (niveau Passivhaus) et aucune climatisation. Les cloisons intérieures sont en briques de terre crue, laissées apparentes ou recouvertes d’un enduit terre blanc. Ces briques, fabriquées par la briqueterie Lanter à 25km du chantier sont maçonnés avec un mortier de loess et de paille, comme les torchis de la tradition constructive alsacienne.
L’ensemble de l’ouvrage est en bois (charpente, murs ossatures bois, fenêtres et revêtements intérieurs). Les poutres maîtresses portent sur toute la largeur du bâtiment permettant une liberté d’aménagement et d’usages ultérieurs sans porteurs intermédiaires. Une sorte de Crown Hall, 100% bois ! La charpente à la française en bois massif local est laissée apparente dans l’ensemble du bâtiment. Au niveau de la salle du conseil et des mariages elle se déforme élégamment pour créer une voûte en bois donnant de l’ampleur et de la solennité à cet espace symbolique fort. Les solives courbes sont en bois massif découpé, reprenant ainsi un savoir-faire ancestral, sans recourir au collage, cintrage ou autre technique complexe. La numérisation permet une variété de profils créant une voûte à inertie variable dans les 2 directions.
La salle du conseil s’ouvre généreusement sur l’extérieur par l’intermédiaire de deux grands châssis coulissants. Cette continuité intérieure/extérieure permet une utilisation variée, et une connexion directe avec ce nouvel espace de rencontre et de convivialité, à l’usage de tous.
